Bebauungspläne (rechtskräftig)
Zwischen Schafhofgasse und Rodensteiner Straße

Südlich Friedhofsstraße

Ein Verkündungsmangel bei der ursprünglichen Bekanntmachung des Bebaungsplanes wurde durch eine erneute Bekanntmachung und vierwöchige Auslegung geheilt (vgl. Sitzung der Gemeindevertretung am 22.04.16, TOP 14.1). Der Satzungsbeschluss der Gemeindevertretung war am 09.09.1966.
Süd-Ost, Teil 3, 1. Änderung

Süd-Ost, Teil 3

Süd-Ost, Teil 2

Ein Verkündungsmangel bei der ursprünglichen Bekanntmachung des Bebaungsplanes wurde durch eine erneute Bekanntmachung und vierwöchige Auslegung geheilt (vgl. Sitzung der Gemeindevertretung am 22.04.16, TOP 14.1).
Süd-Ost, Teil 1

Ein Verkündungsmangel bei der ursprünglichen Bekanntmachung des Bebaungsplanes wurde durch eine erneute Bekanntmachung und vierwöchige Auslegung geheilt (vgl. Sitzung der Gemeindevertretung am 22.04.16, TOP 14.1). Der Satzungsbeschluss der Gemeindevertretung war am 06.04.1973.
Sportanlagen

Ein Verkündungsmangel bei der ursprünglichen Bekanntmachung des Bebaungsplanes wurde durch eine erneute Bekanntmachung und vierwöchige Auslegung geheilt (vgl. Sitzung der Gemeindevertretung am 22.04.16, TOP 14.1). Der Satzungsbeschluss der Gemeindevertretung war am 23.04.1976.
Sondergebiet „Grund“

Wichtiger Hinweis: Dieser Bebauungsplan ist nicht anwendbar, weil widersprüchliche Festsetzungen im zeichnerischen und textlichen Teil zu einer Nichtigkeit des Planes geführt haben.
Schleiersbacher Straße

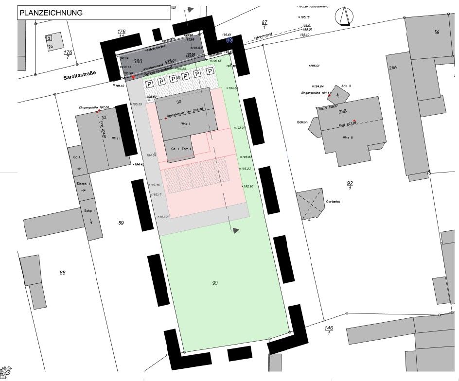
Saroltastraße 30

Östlich der Industriestraße

Art: Bebauungsplan (rechtskräftig) Datum: Freitag, 5. März 202
Nördlich des Erlauer Weges

Ein Verkündungsmangel bei der ursprünglichen Bekanntmachung des Bebaungsplanes wurde durch eine erneute Bekanntmachung und vierwöchige Auslegung geheilt (vgl. Sitzung der Gemeindevertretung am 22.04.16, TOP 14.1). Der Satzungsbeschluss der Gemeindevertretung war am 09.12.1963.
Im Entenpfuhl - Die Brunnenwiesen, 1. Änderung

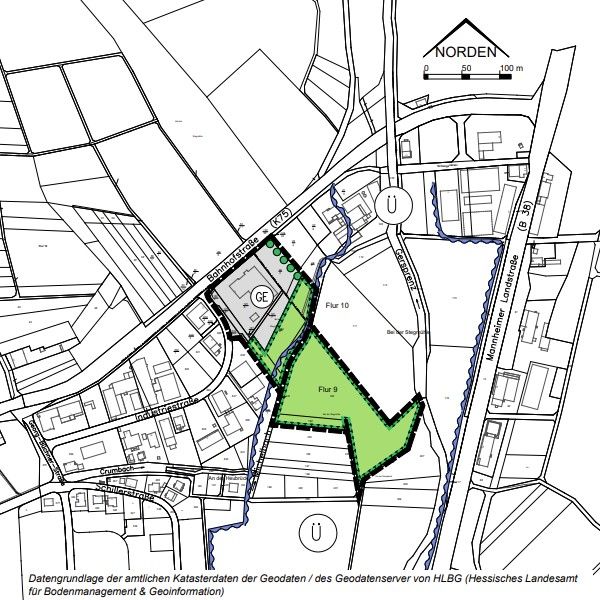
Gewerbegebiet „Süd-Ost“, Teil 3

Gewerbegebiet „Süd-Ost“, Teil 2

Gewerbegebiet „In der Herberig“ 1. Änderung
Art: Bebauungsplan (rechtskräftig) Datum: Freitag, 29. November 2013
Friedhofstraße

Die Brunnenwiesen

Brunnenwiese II
Art: Bebauungsplan (rechtskräftig) Datum: Freitag, 11. Dezember 2015
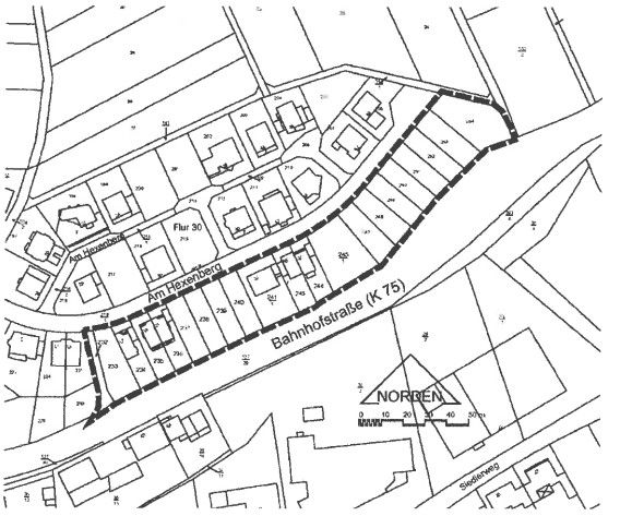
Baugebiet „Hexenberg“, 4. Änderung

Art: Bebauungsplan (rechtskräftig) Datum: Freitag, 30. September 2016
Baugebiet „Hexenberg“, 3. Änderung

Baugebiet „Hexenberg“, 2. Änderung

Baugebiet „Hexenberg“, 1. Änderung

Baugebiet „Hexenberg“

Art: Bebauungsplan (rechtskräftig) Datum: Freitag, 8. September 1995
Auf der Beine, Plan II, 1. Änderung

Ein Verkündungsmangel bei der ursprünglichen Bekanntmachung des Bebaungsplanes wurde durch eine erneute Bekanntmachung und vierwöchige Auslegung geheilt (vgl. Sitzung der Gemeindevertretung am 22.04.16, TOP 14.1). Der Satzungsbeschluss der Gemeindevertretung war am 07.12.1970.
Am Wingertsberg

Ein Verkündungsmangel bei der ursprünglichen Bekanntmachung des Bebaungsplanes wurde durch eine erneute Bekanntmachung und vierwöchige Auslegung geheilt (vgl. Sitzung der Gemeindevertretung am 22.04.16, TOP 14.1). Der Satzungsbeschluss der Gemeindevertretung war am 12.02.1964.



